Nedlagt landbrug med flere muligheder!
Ejendommen er beliggende til offentlig vej i Sdr. Vrå, med kort afstand til Vrå med godt handelsliv, skole, børneinstitutioner og gode idræts faciliteter. Fra Vrå er der gode bus- og togforbindelser til både Hjørring og Aalborg.
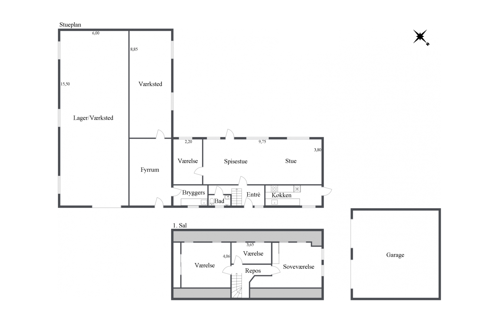
Boligen er i 2 plan, stueplan med bryggers, entre, køkken med spiseplads og udgang til have, spise- og opholdsstue, værelse, badeværelse. Trappeopgang fra entre til 1. sal med repos, 3 værelser og soveværelse.
141 m² regulær medbygget bygning med fyrrum, værksted og stort disponibelt rum, bygningen har flere anvendelsesmuligheder indenfor erhverv eller hobbies.
56 m² nyere fritliggende muret garage.
Til ejendommen er der 1,2870 ha. jord, hvoraf tidligere minkfarm tager en del, resterende er i have og et regulært mark areal med mulighed for mindre dyrehold evt. større urtehave.


















