Centralt beliggende med plads og muligheder
Villa med 222 m² bolig og 174 m² kælderplan, i smuk palæstil med højt til loftet i klassisk arkitektur og med eksklusive materialevalg.
Centralt beliggende på stille vej i Hjørring midtby nær Hjørring Kunstmuseum, den smukke P. Nørkjærs Plads med international attraktion af kunstværk og vandløb gennem pladsen. Villaen fremstår flot med hvidpudset facade og detaljer som kvader og gesimser, sort glaseret tegltag, pæne sprosse vinduer, alt med respekt for oprindelig stil.
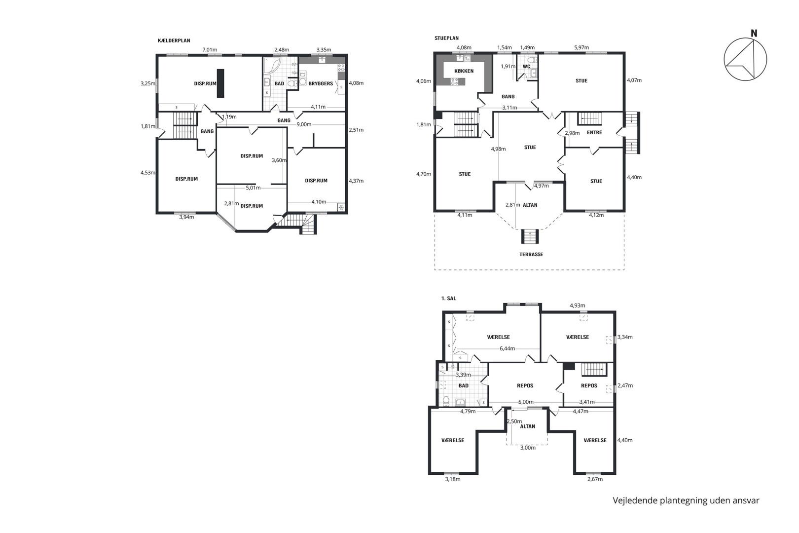
Boligen er i stueplan med 2 entréer, gæstetoilet, lyst køkken med god spiseplads, 3 rummelige stuer med flotte plankegulve, stuklofter og brede gerigter med udskæringer, fra stue udgang til flot ophøjet muret sydvendt terrasse med trappe ned til gårdhaven. Trappeopgang fra enté til 1. sal med stor repos med udgang til sydvendt balkon, badeværelse og 4 pæne værelser. Nedgang fra entré til god, stor og anvendelig kælder med bryggers, badeværelse med spa og bruser, 5 gode disponible rum.
40 m² stor god garage.
En villa for den pladskrævende familie. Villaen vil også være anvendelig til flere forskellige liberale erhverv, bl.a. kontor, klinik eller andet.
Villaen skal ses og opleves.













































