Pæn veludført murermester villa i gule sten.
Centralt beliggende i landsbyen Vittrup med børnepasning og en meget aktiv beboerforening. Kun 3 km til Lyngby strand og 5 km til den kendte ferieby Løkken, som har det hele og ikke mindst en af landets bedste badestrande. Området ligger tæt på rigtig mange turistattraktioner, bl.a. Børglum Kloster og Rubjerg Knude.
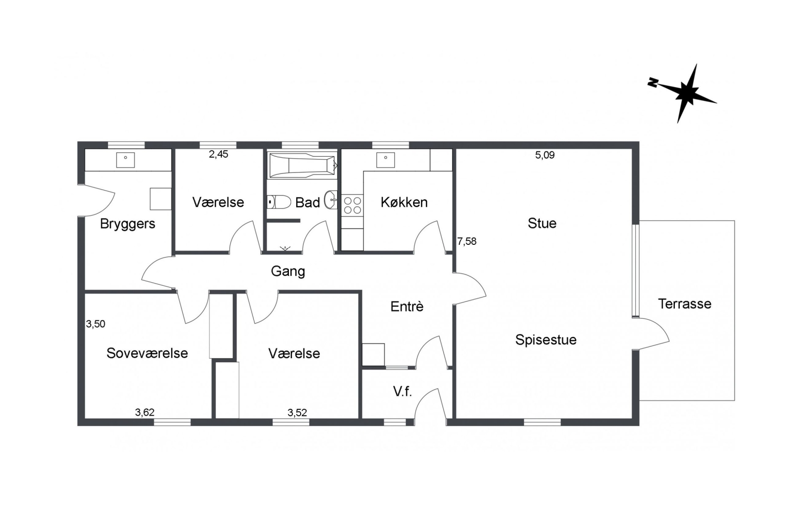
Villaen er velholdt og indrettet med vindfang, entré, lyst køkken med mindre spiseplads, spise- og opholdsstue med udgang til sydvendt terrasse, soveværelse, 2 værelser, pænt badeværelse med gulvvarme, badekar og god bruseniche, bryggers med bordarrangement og plads til vaskemaskine.
32 m² muret garage hvortil der også er adgang fra haven.
Stor velanlagt og overkommelig have med stor græsplæne.
Villaen er opført i 1976 af nuværende ejer og er løbende blevet vedligeholdt bl.a. med udskiftning af de fleste vinduer.
Villaen, der kan benyttes som flexbolig opvarmes med fjernvarme og har et godt energimærke.



























